2 wire 3 wire and 4 wire rtd inputs. See cover page for an image of the emcp 44 gsc.
Free Emcp 2 Wiring Free Emcp 3 1 3 2 3 3 Generator Set
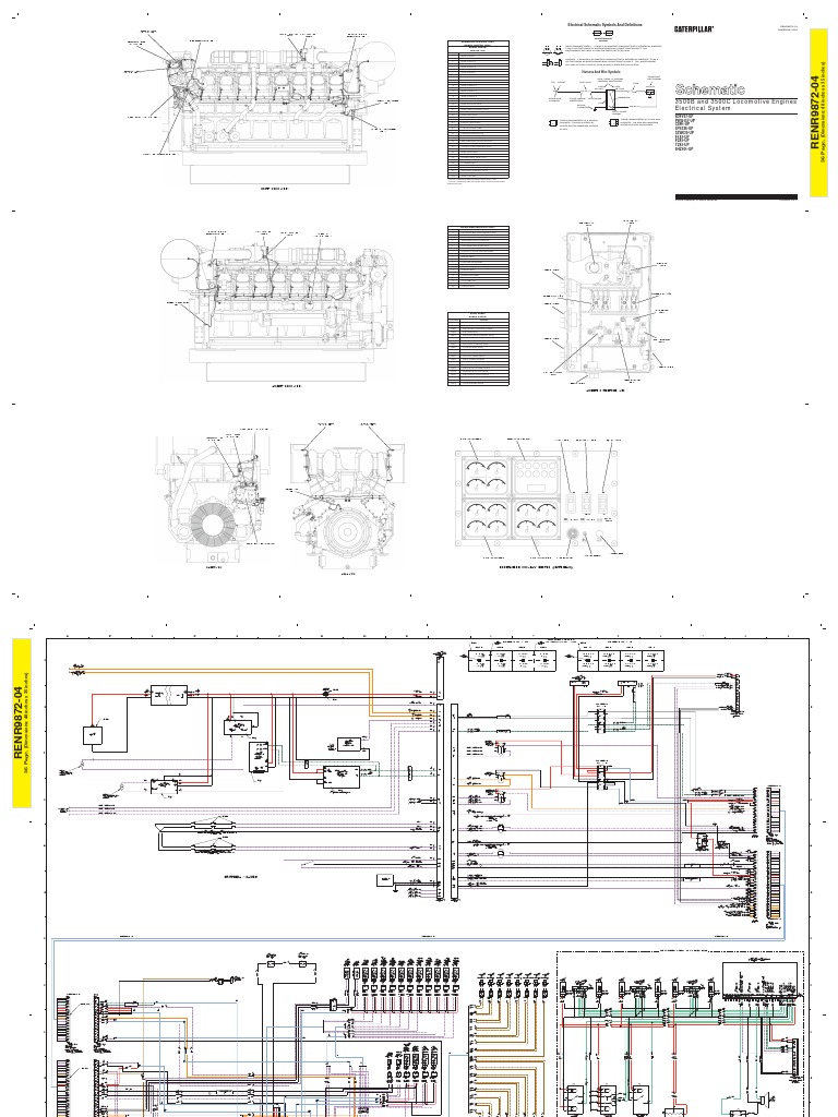
Emcp 4 2 wiring diagram. This application and installation guide is intended to cover the emcp 41 and 42. Three phase wiring diagram. Leds on the emcp 4 include the warning shutdown and ecs mode indicators on the emcp 4 gsc as well as the status indicator on the dio. 5 emcp and electrical diagrams. Sensors will typically be wired to the engine ecm and the emcp 4 will get that information from the engine. A maximum of four dio modules may be used with a single emcp 42.
Emcp 41 42 43 or 44 generator set controller. The rtd module serves to provide expandable generator temperature monitoring capability of the emcp 4 and is capable of reading up to eight type 2 wire 3 wire and 4 wire rtd inputs. Emcp simulator was designed to provide a way to. Electronic modular control panel emcp for rental generator 3300 family specifications vr3f flat top voltage regulator for 46 and 1012 lead self testing and adjusting vr3f flat top voltage regulator for 46 and 1012 lead self systems operation. Emcp 4344 remote display the electric power remote hmi display is designed to seamlessly integrate with diesel c27 c175 5060 hz 400v 15 kv generator sets equipped with emcp 4344 controls. Diagnostics from the emcp 4 optional modules can be viewed and reset through the emcp 42.
The rtd module has been designed for use on the accessory communication network and. Emcp 42 wiring diagram. Appendix b shows a front view of the emcp 41 and 42. Emcp auto start control panel upgraded to nfpa 11 0. Engine and generator controls diagnostics and operating information are accessible via the control panel keypads. Since the emcp 42 can replace many different controls the wire numbers on the existing wiring will likely not correspond with the emcp 42 terminal blocks.
The wire numbers on the existing wiring along with the schematic for the existing control will help to identify the function for each wire. The emcp 4 generator set control or gsc is the primary controller within the generator set control system. The cat emcp 42 offers fully featured power metering protective relaying and engine and generator control and monitoring. The emcp 4 line of generator set controllers includes emcp 41 42 43 and 44.
















