Are you looking for this electrical wiring diagram for your car volkswagen golf mk1. It was noteworthy for signalling volkswagens shift of its major car lines from rear wheel drive and rear mounted air cooled engines to front wheel.
Working Wiring Diagram Using Yamaha F R Switch Youtube
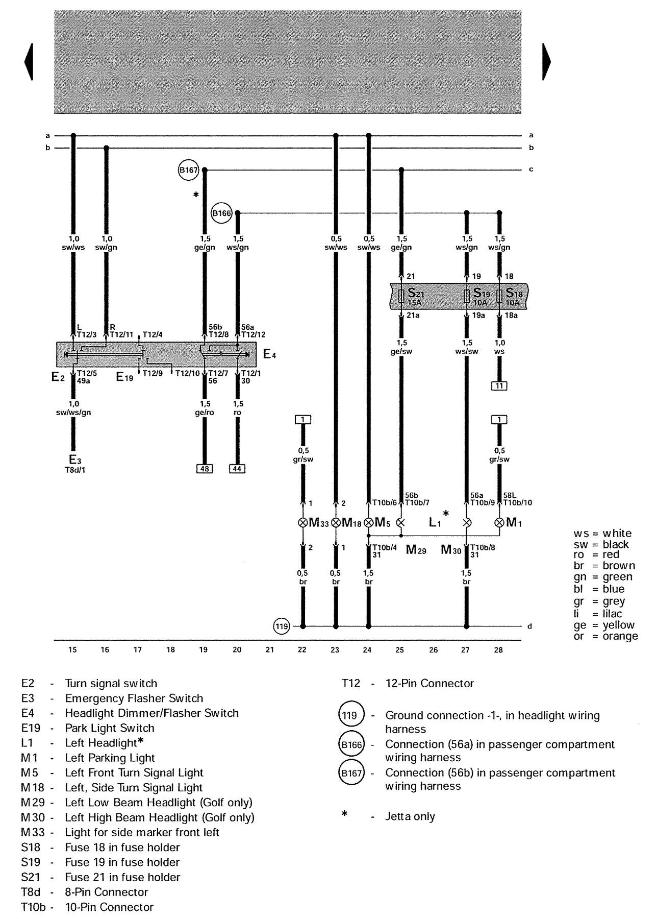
Golf wiring diagram. It shows the components of the circuit as simplified shapes and the capacity and signal friends together with the devices. Mk1 mk2 golf ce1. Mk1 fusebox and some early mk2 golfs up to 1989. Welcome to vag wiring diagrams by stewyl. Mk2 golf fuse box diagrams from 1989 1992. Golf has become the most successful model of volkswagen it takes the third place among the best selling cars.
Volkswagen golf rabbit electrical wiring diagrams. A golf cart wiring diagram is a great help in troubleshooting any problems with your golf cart or if you want to replace your own golf cart batteries or perform other types of repairs. Mk3 golf ce2 fusebox from 1993 1999 engine pinouts. Vw golf 5 wiring diagram wiring diagram is a simplified okay pictorial representation of an electrical circuit. See more ideas about golf carts ezgo golf cart electric golf cart. It shows the components of the circuit as simplified shapes and also the power and signal connections in between the tools.
Volkswagen golf iii 1994 system wiring diagrams. A wiring diagram is a streamlined conventional pictorial representation of an electric circuit. Polo lupo diagrams from 1999 2005. Mk3 golf wiring fusebox. A wiring diagram is a simplified traditional photographic representation of an electric circuit. Wellborn variety of club car golf cart wiring diagram.
You will need to know the make model and year of your golf cart to get the correct repair parts or service manual. The volkswagen golf mk1 is the first generation of a small family car manufactured and marketed by volkswagen. Collection of 36 volt ez go golf cart wiring diagram. Volkswagen golf the car of the german company volkswagen. December 1 2018 by larry a. Specialists will find in the volkswagen golf repair manuals a lot of.
Mar 6 2020 golf cart wiring diagrams for club yamaha and ez go golf carts. It shows the parts of the circuit as streamlined forms and the power as well as signal links between the tools. The manuals have sections on electrics so the user will find in the book all the volkswagen golf wiring diagramsif the car has to be repaired or an unforeseen situation happened when volkswagen crashed unexpectedly for example during the journey then the car owner will certainly need to look in this handbook. Polo 6n2 lupo.


















