Assortment of hid card reader wiring diagram. It shows the parts of the circuit as streamlined shapes and the power and also signal links in between the tools.
2n Access Unit Rfid Rfid Card Reader 2n
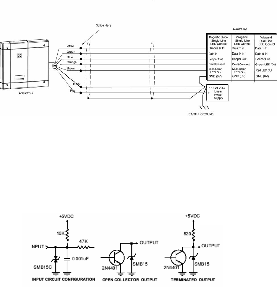
Hid card reader wiring diagram. Once wiring is complete the readers can now be brought online. July 7 2018 by larry a. Turn on power test card. It shows the parts of the circuit as simplified forms as well as the power as well as signal links in between the devices. A wiring diagram generally offers details about the family member position and also arrangement of tools and terminals on the tools to aid in structure or servicing the tool. Installation of the proxpro reader consists of mounting verifying the dip switch settings setting a tuning jumper and connecting the cable to the host.
With the use of configuration cards the reader can be modified to meet the specific requirements. It shows the components of the circuit as simplified shapes and the talent and signal contacts between the devices. Optimum read range is achieved when the access card is presented face on and parallel to the reader. A wiring diagram is a streamlined standard photographic depiction of an electric circuit. Install reader to backplate. For multiple hid osdp readers that will be connected to the nsc 200 the wiring will have to be daisy chained as shown.
9xxxxxlekxxxxx follow the wiring diagram on the reader. Nsc 200 to hid osdp reader wiring. Security tool for anti tamper screw hid 04 0001 03 drill with various bits for mounting hardware. A wiring diagram is a simplified traditional pictorial representation of an electric circuit. For multiple osdp reader installations the readers must be brought online. January 30 2019 by larry a.
Collection of hid prox reader wiring diagram. A wiring diagram usually gives recommendation roughly the relative point of view and covenant of devices and terminals on the devices to put up to in building or servicing the device. 11 operation access cards may be presented to either the front or the back of the reader. Hid card reader wiring diagram wiring diagram is a simplified usual pictorial representation of an electrical circuit.
















