Not sure if its the fuse problem. Search across the entire site search in this forum search in this discussion.
Volkswagen Golf Pdf Workshop And Repair Manuals
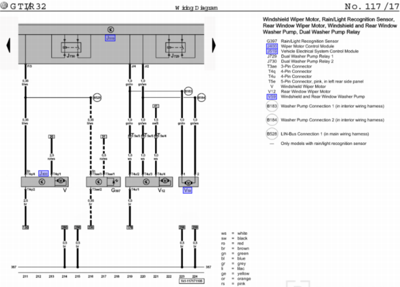
Mk6 gti wiring diagram. This manual is specific to a 2009 volkswagen gti. In the shortest possible time an ultramodern factory was built in. Repairsurge is compatible with any internet enabled computer laptop smartphone or tablet device. Instrument panel wiring diagram of 1992 volkswagen gti. My drl cannot be turned on and bulbs are working well. In 1937 volkswagen was founded which was to become the symbol of the new germany.
Volkswagen golfjetta 18i 1984 1988 engine. Perhaps but their wiring and harnesses are all too small. Wiring quality in these cars is not what youd call excellent. Volkswagen golf pdf workshop service and repair manuals wiring diagrams parts catalogue fault codes fuse box diagram. Anyone have a wiring diagram or pic i can see. Jump to latest follow 1 6 of 6 posts.
Detailed information on circuit paths splice locations more. Current flow diagram vw golf v j255. Im using a line out converter but idk what wires i need to splice into on the factory wiring harness. Fuse box diagram location and assignment of electrical fuses for volkswagen vw golf vi gti mk6. Vw car manuals pdf wiring diagrams volkswagen fault codes dtc above the page 1500 1500s amarok beetle bora cc crafter eos golf jetta kafer karmann ghia lupo passat polo scirocco sharan tiguan touareg transporter. Step by step instructions w illustrations.
Volkswagen golf pdf workshop service and repair manuals wiring diagrams parts catalogue fault codes fuse box diagram. How to wire your 2012 mk6 gti for a 4 pin trailer. Any one out there has or knows where to get jetta mk6 fuse diagram. Volkswagen golfjetta 16 1983 1992 engine volkswagen golfjetta syncro 18 1983 1992 engine. Gti mk6 2009 2014. It is very easy to use and support is always free.
2009 2010 2011 0212 2013.


















